Мария 090588 Ваше имя: Татоша Локация: Воронеж Опубликовано: 22 января 2023 Опубликовано: 22 января 2023 Добрый день. Нужна помощь, совет по созданию террариума. Хочу заказать новый террариум, проект моих желаний на фото . Не пойму как сделать вентиляцию, читала много,но .... Если у меня будет в длину крышки сетка и с боковых сторон по низу тоже вентиляция.... С одной стороны будет домик и он закроет наполовину вентиляцию. Поэтому хочу сделать 2боковых нижних вентиляции. Такая схема работать будет?В теории вентиляция должна быть напротив друг друга , но я не хочу выводить на передний план вентиляцию -черепаху за ней видно не будет. Все таки террариум это в том числе и предмет интерьера). Что посоветуете? И на каком расстоянии от пола располагать вентиляцию?
Nikolay Ваше имя: Николай Локация: Россия. Москва. Опубликовано: 22 января 2023 Опубликовано: 22 января 2023 @Мария 090588 я бы расположил вентиляцию от пола на высоте 12-15 см и увеличил общую длинну до 100 см.
Мария 090588 Ваше имя: Татоша Локация: Воронеж Опубликовано: 22 января 2023 Автор Опубликовано: 22 января 2023 Возможности увеличить до 100 нет. Делаю под размер свободного места. Если сделать от пола 10 см + 5см сетка - получится чуть ли не в середине аквариума.
Nikolay Ваше имя: Николай Локация: Россия. Москва. Опубликовано: 22 января 2023 Опубликовано: 22 января 2023 @Мария 090588 в противном случае грунт закроет вентиляцию. Я не в курсе, возможно вы не планируете грунт.
Nikolay Ваше имя: Николай Локация: Россия. Москва. Опубликовано: 22 января 2023 Опубликовано: 22 января 2023 @Мария 090588 если высота 40+ грунт+ размер светильника, то от ламп до черепахи остаëтся совсем мало.
Мария 090588 Ваше имя: Татоша Локация: Воронеж Опубликовано: 22 января 2023 Автор Опубликовано: 22 января 2023 Грунт щепа или кокосовые чипсы 4-5 см. Больше делать -не представляю как их менять. Тут за 2 недели уже запах стоит.... 15 минут назад, Nikolay сказал: @Мария 090588 в противном случае грунт закроет вентиляцию. Я не в курсе, возможно вы не планируете грунт.
Nikolay Ваше имя: Николай Локация: Россия. Москва. Опубликовано: 22 января 2023 Опубликовано: 22 января 2023 @Мария 090588 я купаю через день или каждый день, все свои дела черепаха делает в воде. Запаха нет.
Мария 090588 Ваше имя: Татоша Локация: Воронеж Опубликовано: 22 января 2023 Автор Опубликовано: 22 января 2023 Я думала светильник UVB должен быть на расстоянии 25см до черепахи. Как раз плюс грунт (5 см)+ черепаха +25 см от черепахи остаётся лампа. К сожалению у меня нет возможности купать каждый день. Поэтому я меняю грунт, как только появляется запах. Я понимаю что по правилам надо 10см грунта, но уже изначально не смогу этого обеспечить.... 2 минуты назад, Nikolay сказал: @Мария 090588 я купаю через день или каждый день, все свои дела черепаха делает в воде. Запаха нет. Плюс ещё плитки и камни мою по мере загрязнения.
Nikolay Ваше имя: Николай Локация: Россия. Москва. Опубликовано: 22 января 2023 Опубликовано: 22 января 2023 @Мария 090588 я под светильник т5 заказывал такой для черепахи. Грунт - земля+ песок+ кора лиственницы. Меня всё устраивает, черепаху вроде бы тоже. С высотой нужно подумать, посчитать, взвесить. Лучше тер чуть выше, что бы была возможность опустить лампы, чем ошибиться и тогда лампы придется ставить на вентиляцию. @Мария 090588
Мария 090588 Ваше имя: Татоша Локация: Воронеж Опубликовано: 22 января 2023 Автор Опубликовано: 22 января 2023 Да у вас за хорошие пропорции террариума! Но я про мои размеры думаю, что если на 40см. Ставить вентиляцию выше, то будет ли приток воздуха ? Все таки что бы затягивало воздух, надо ниже ставить .... В общем надо ещё раз все взвесить и подумать! А передняя вентиляция -сколько см у вас шириной? 1
Nikolay Ваше имя: Николай Локация: Россия. Москва. Опубликовано: 22 января 2023 Опубликовано: 22 января 2023 @Мария 090588 4 см
Мария 090588 Ваше имя: Татоша Локация: Воронеж Опубликовано: 22 января 2023 Автор Опубликовано: 22 января 2023 Спасибо! А то думала , может нужно больше делать. 1 минуту назад, Nikolay сказал: @Мария 090588 4 см
СветаКо Ваше имя: Чери Локация: Россия, г. Набережные Челны Опубликовано: 22 января 2023 Опубликовано: 22 января 2023 (изменено) Добрый вечер. Делать нижнюю вентиляцию с двух сторон не надо. Будет прямо по черепахе тянуть. Смысл вентиляции, чтобы снизу холодный воздух нагревался и уходил в верхнюю вентиляцию. Если сделаете нижнюю вентиляцию на уровне грунта, этот самый грунт будет попадать в вентиляцию. Поэтому нижнюю делают на 5 см выше грунта. В вашем случае не хотите сделать верхнюю вентиляцию ни вдоль, а поперек? А если у вас террариум не вплотную к чему то стоит, то верхнюю вентиляцию можно сделать на противоположной стенке. Так будет правильней.Насчет уф ламп. Если у вас т8 или компакт, то они как рази будут на 25 см от грунта. Мы вешаем еще ниже. У нас т8 с отражателем на 20 см от грунта. А была компакт симпл зоо, так мы ее сразу на 20 см вешали и постепенно снижали до 15 см. Изменено 22 января 2023 пользователем СветаКо
Мария 090588 Ваше имя: Татоша Локация: Воронеж Опубликовано: 22 января 2023 Автор Опубликовано: 22 января 2023 Добрый вечер. Смысл в том , что лампы будут крепится в вентиляционную сетку, поэтому и делаю вентиляцию вдоль . Теория у меня такая: если я делаю вдоль(горизонтально) , то воздух с нижней боковой вентиляции, будет подниматься вверх ,но не большому кругу , а по малому...то есть прямо по боковой стенке.... И получается середина террариума может особо не вентилироваться. Поэтому есть желание сделать вторую вентиляцию. А ещё есть предположение , что делать нижнюю вентиляцию нужно со стороны без ламп, так как там воздух будет нагреваться от ламп. А если с другой стороны (с холодной) сделать вентиляцию, у меня там будет домик и он закроет вентиляцию наполовину! Оооо, как сложно всё просчитать чтобы сделать грамотно и при этом учесть все ньюансы. Даже люди которые делают террариумы не до конца компетентны в этом вопросе..... Лампа бедет Т8 с отражателем и обычный светильник Е27. Насчёт света не переживаю , а вот именно вентиляция меня ввела в ступор...
Nikolay Ваше имя: Николай Локация: Россия. Москва. Опубликовано: 23 января 2023 Опубликовано: 23 января 2023 @Мария 090588
Мария 090588 Ваше имя: Татоша Локация: Воронеж Опубликовано: 23 января 2023 Автор Опубликовано: 23 января 2023 Да, я видела эти схемы... Поэтому и предполагаю, что вентиляция с сеткой вдоль и боковой вентиляцией может вообще не работать.или плохо работать.
Nikolay Ваше имя: Николай Локация: Россия. Москва. Опубликовано: 23 января 2023 Опубликовано: 23 января 2023 @Мария 090588 на мой взгляд террариум подобного типа- оптимальный вариант.
СветаКо Ваше имя: Чери Локация: Россия, г. Набережные Челны Опубликовано: 23 января 2023 Опубликовано: 23 января 2023 Вы из чего террариум делать будете? Если есть возможность делать вентиляцию нижнюю по передней стенке, делайте. Так будет лучше всего.
Наталья Ви. Ваше имя: Наталья Локация: Москва Опубликовано: 17 февраля 2023 Опубликовано: 17 февраля 2023 @Nikolay Здравствуйте, где заказывали терр такой, подскажите? И второй вопрос. Я видела про варианты с кармашком, чтобы вентиляция нижняя заходила внутрь терра и решетка повернута вверх была. Как думаете про такой вариант? Из минусом, крадется 5 см внутреннего пространства террариума. Их плюсов: не дует на черепаху, т.к. решеткой вверх.
Nikolay Ваше имя: Николай Локация: Россия. Москва. Опубликовано: 17 февраля 2023 Опубликовано: 17 февраля 2023 @Наталья Ви. День добрый, были муки выбора, как и у Вас, выбрал классику. Единственное, поднял нижнюю вентиляцию до 15 см от пола. Производителя сейчас поищу
Наталья Ви. Ваше имя: Наталья Локация: Москва Опубликовано: 17 февраля 2023 Опубликовано: 17 февраля 2023 @Nikolay да-да, я видела Ваш рисунок. Спасибо. Тоже подниму, у производителя почему-то низко (у многих так, кого ищу, но по заказу они поднимают выше и верхнюю решетку тоже делают шире). А толщина стекла какая?
Nikolay Ваше имя: Николай Локация: Россия. Москва. Опубликовано: 17 февраля 2023 Опубликовано: 17 февраля 2023 @Наталья Ви. У меня 5 мм. И то получился достаточно тяжелый.
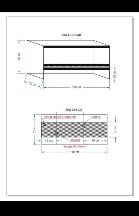
Мария 090588 Ваше имя: Татоша Локация: Воронеж Опубликовано: 17 февраля 2023 Автор Опубликовано: 17 февраля 2023 @Nikolay @Наталья Ви. Добрый день. Насчет где заказывали террариум, лучше выбирать изготовителей в своем городе, иначе доставка из другого региона влетает в круглую сумму. Я на итоге сделала террариум по своему эскизу и своим размерам.
Мария 090588 Ваше имя: Татоша Локация: Воронеж Опубликовано: 17 февраля 2023 Автор Опубликовано: 17 февраля 2023 1
Nikolay Ваше имя: Николай Локация: Россия. Москва. Опубликовано: 17 февраля 2023 Опубликовано: 17 февраля 2023 @Мария 090588 а зачем заказыаать в другом регионе, если в каждом городе найдется мастер? Мне доставка, подъëм и страховка обошлась в 600 рублей. @Мария 090588 с таким расположением вентиляции сквозняк неизбежен(
Рекомендованные сообщения
Создайте аккаунт или войдите в него для комментирования
Вы должны быть пользователем, чтобы оставить комментарий
Создать аккаунт
Зарегистрируйтесь для получения аккаунта. Это просто!
Зарегистрировать аккаунтВойти
Уже зарегистрированы? Войдите здесь.
Войти сейчас